Introduction
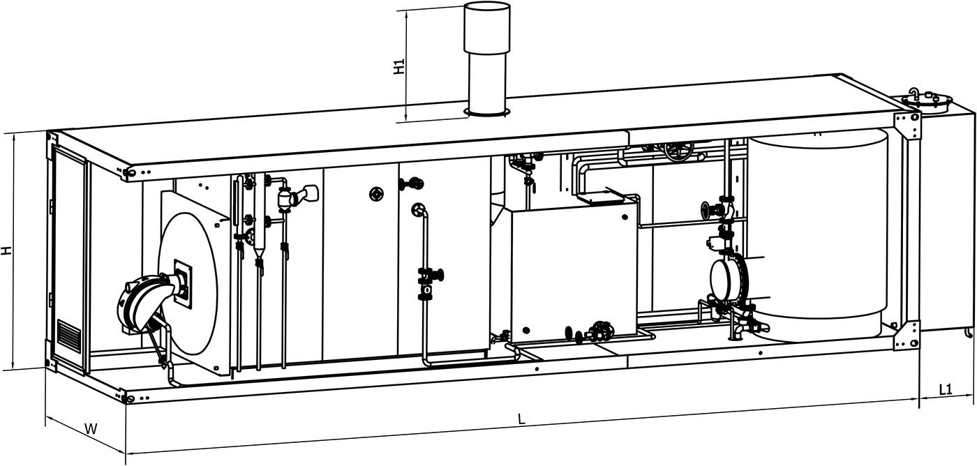
It is a package unit. It contains electricity, fuel, water, purification and all installation equipment. All you have to do is press a button to activate it. It is a mobile unit, it can be easily carried and used in the desired place and condition without any problems due to its special containers. Thanks to the specially designed Steam generator and Boilers in its structure, it responds to your high-efficiency steam, hot water and utility water needs in a very short time. Since the container is heat insulated, it works successfully in all weather conditions. It can be designed and manufactured completely according to the need to produce only steam, hot water, utility water or all of them. It is specially designed according to different needs. Since all installation connections come from a single point, their use, assembly and maintenance are very practical.
Since the containers are specially designed according to the equipment used, they are very robust, useful and long-lasting. Their dimensions are small and the interior is designed in a way that operators can move easily. The containers are designed in such a way that all equipment can be easily taken out and taken in. The front cover can be completely opened, so maintenance and repair are very easy. It can be produced suitable for every fuel (diesel, fuel-oil, gas, LPG etc.).
Application Areas
Concrete kiosk production facilities (curing)
Road, tunnel, dam, bridge and metro construction sites (Steam + domestic hot water + heating water)
Concrete Production Plants (heating of aggregates with steam and heating of mixer additive water)
Precast concrete production facilities
Field hospitals
Military camps and control centers.







